-
ObjektartBüro | Gewerbe
-
Objekt-ID3822561
-
AdresseFalknerstrasse 11
-
PLZ4001
-
OrtBasel
-
MietpreisPreis auf Anfrage
-
Etage5
-
PersonenliftJa
Repräsentative Lage: Sofort verfügbare Bürofläche mit Dachterrasse im Herzen von Basel
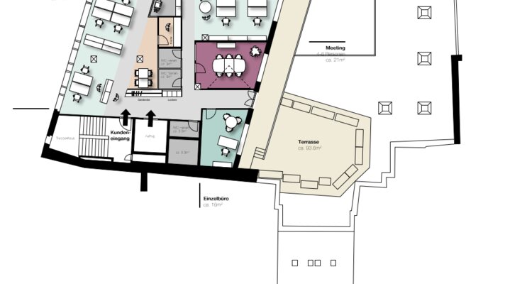
An bester Innenstadtlage, nur wenige Schritte von der Freien Strasse entfernt, bieten wir ca. 200 m² Bürofläche an. Der aktuelle mieterseitige Ausbau wird zurück gebaut, sobald ein neues Ausbaukonzept vorliegt.
Die Liegenschaft überzeugt durch ihre zentrale Lage zwischen Marktplatz und Barfüsserplatz – mitten im wirtschaftlichen und kulturellen Zentrum von Basel. Die Umgebung bietet eine erstklassige Infrastruktur, vielseitige Gastronomie und ein inspirierendes Umfeld für Ihre Mitarbeitenden und Kunden.
Ideal für Unternehmen, die eine repräsentative Geschäftsadresse im Herzen von Basel suchen und Wert auf Erreichbarkeit und ein professionelles Umfeld legen.
Haben wir Ihr Interesse geweckt?
Kontaktieren Sie uns gerne für weitere Informationen oder zur Vereinbarung eines Besichtigungstermins.
An bester Innenstadtlage, nur wenige Schritte von der Freien Strasse entfernt, bieten wir ca. 200 m² Bürofläche an. Der aktuelle mieterseitige Ausbau wird zurück gebaut, sobald ein neues Ausbaukonzept vorliegt.
Die Highlights im Überblick:
- Bürofläche mit ca. 200 m²
- Klimaanlage für angenehmes Raumklima
- Grosszügige Dachterrasse
- Hervorragende Erreichbarkeit mit öffentlichen Verkehrsmitteln
- Nur ca. 8 Gehminuten vom Bahnhof SBB entfernt
Die Liegenschaft überzeugt durch ihre zentrale Lage zwischen Marktplatz und Barfüsserplatz – mitten im wirtschaftlichen und kulturellen Zentrum von Basel. Die Umgebung bietet eine erstklassige Infrastruktur, vielseitige Gastronomie und ein inspirierendes Umfeld für Ihre Mitarbeitenden und Kunden.
Ideal für Unternehmen, die eine repräsentative Geschäftsadresse im Herzen von Basel suchen und Wert auf Erreichbarkeit und ein professionelles Umfeld legen.
Haben wir Ihr Interesse geweckt?
Kontaktieren Sie uns gerne für weitere Informationen oder zur Vereinbarung eines Besichtigungstermins.
Adresse
Falknerstrasse 11
4001 Basel
Ihr Ansprechpartner

